

Construction equipment parked on a former orchard that’s been vacant for years is a tangible sign that a new Tri-Cities Costco is coming. Costco recently signed a lease with the state Department of Natural Resources for 29.48 acres at the corner of Kennedy Road and Truman Avenue.
Photo by Nathan FinkeConstruction equipment parked on a former orchard that’s been vacant for years is a tangible sign that a new Tri-Cities Costco is coming.
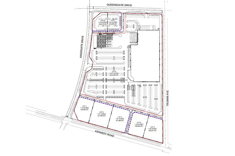
But there’s further proof if you need it: Costco has signed a lease with the state Department of Natural Resources for the land next door to the Target-anchored shopping area in the Queensgate area of Richland.
Site preparation work is underway, with construction expected to begin in February at the corner of Kennedy Road and Truman Avenue. The Costco gas station is scheduled to be completed in July, and warehouse construction will wrap up in October.
The construction timelines are listed in a 97-page lease agreement with the state, obtained by the Tri-Cities Area Journal of Business through a public records request.
Costco will pay $400,000 per year to lease the 29.48-acre property for the first five years, with a 10% increase every five years through the first 25 years, according to the agreement signed Nov. 6.
The 25-year lease has options to extend up to 55 years.
The city of Richland is excited about welcoming the mega warehouse to town.
“This is a momentous occasion for our city, and we are incredibly excited to see construction begin right away,” said Jon Amundson, Richland’s city manager, in a statement. “This project has been years in the making, and it's a testament to the hard work and dedication of the Department of Natural Resources, Costco and our city staff. This new store will bring more shopping options to our residents and generate significant economic growth for our community.”

The Richland Costco is set to wrap up construction in the Queensgate area in October 2025, according to a 97-page lease agreement with the state Department of Natural Resources.
| Courtesy Department of Natural ResourcesA second Tri-Cities Costco has been under discussion for several years.
In 2021, the retailer eyed Pasco off of Broadmoor Boulevard, and it began negotiating the lease for the state land in Richland in 2023, when it submitted a letter of interest for the area.
More recently, Costco submitted permit applications to the city of Richland in August for grading and the construction of a 182,644-square-foot building valued at $22.9 million at 3125 Queensgate Drive.
Some of Costco’s permits have since been approved.
The permit to grade 1.25 million square feet and move 135,428 cubic yards of material was issued on Oct. 31, along with a right of way for commercial infrastructure, including roadwork and underground utilities and public infrastructure sub-permit. The permit for building construction was issued on Nov. 13.
Costco has submitted permit applications for signs valued at about $81,000, including four wall signs, one mounted on each side of the future building, an entrance sign, and a tire center sign.
MG2, a Seattle-based company listed as the applicant for the commercial construction permit, is also the applicant for the sign permits.
Costco declined to discuss the Richland project, saying its policy is not to comment on future warehouse locations beyond three months.
Reporter Sara Schilling contributed to this report.
